Реновация в старом районе может начаться со второй попытки
Проект «реновации» может принести в бюджет почти 14 миллионов рублей. А может не принести. Такое уже было.
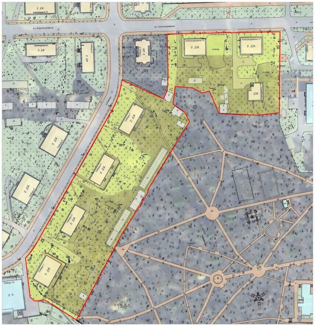
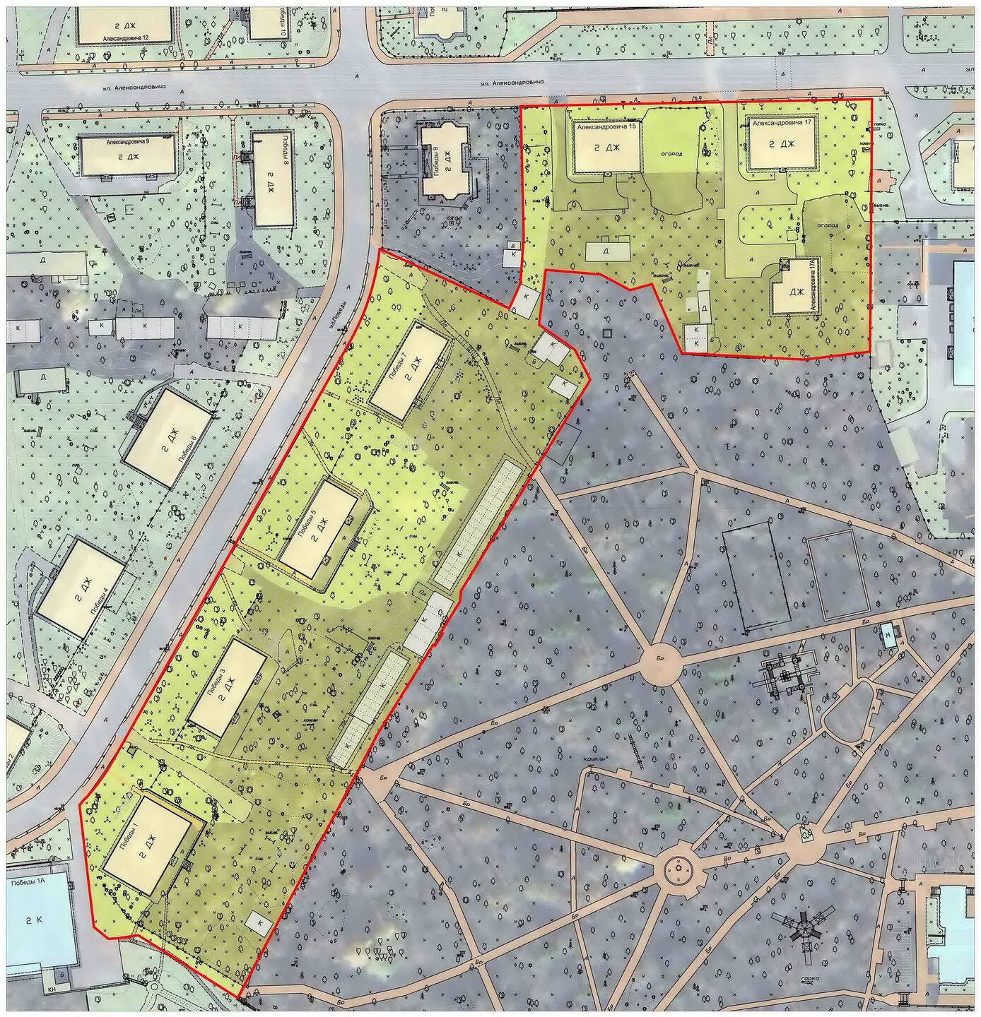
В этот раз на торгах право на проведение реновации (развитие застроенных территории жилых домов № 15,17,17а по ул. Александровича и № 1,3,5,7 по ул. Победы) победителем стал Олег Сидорук — гражданин, аффилированный с Павлом Харитоновым и его фирмами.
Напомним, в августе 2020 года на аналогичных торгах по «реновации» домов № 15, 17 и 17а по ул. Александровича победителем стал тот же Сидорук.
После победы на торгах, контракт на освоение территории он заключать не стал, выплатив в городской бюджет незначительный штраф. Проще говоря, откупился и отодвинул для города момент начала реновации на полгода. Это уже привычная стратегия застройщика Павла Харитонова. Схема позволяет не давать строиться новому жилью в Сарове и удерживать фантастические огромные цены на свое уже построенное жилье.
В этот раз, правда, есть отличия: городская администрация на торги выставила участок побольше, включив туда дома по улице Победы. Вместе с этим и неустойка в случае не подписания контракта увеличилась до 7 миллионов рублей.
Есть шансы, что в этот раз на новых условиях договор всё же будет заключён и реновация в Сарове начнётся.
Обязательным условием заключения договора является наличие у победителя письменных договоренностей, со всеми без исключения собственниками жилья в вышеуказанных домах, об их согласии на денежную компенсацию или предоставление сопоставимого по площади жилья в другом месте. На сегодняшний день на участке «реновации» проживает 51 семья.
Проект застройки должен соответствовать нормативам по обеспечению жителей парковками, доступам к социально-культурным объектам и т. д, но в принципе понятно, что район будет максимально плотно застроен девятиэтажками. Хотя не удивимся, если в итоге увидим девять домов, вместо семи и одиннадцать этажей вместо девяти. Такое с этими застройщиками мы уже проходили. Будем следить за ситуацией.














Статистик